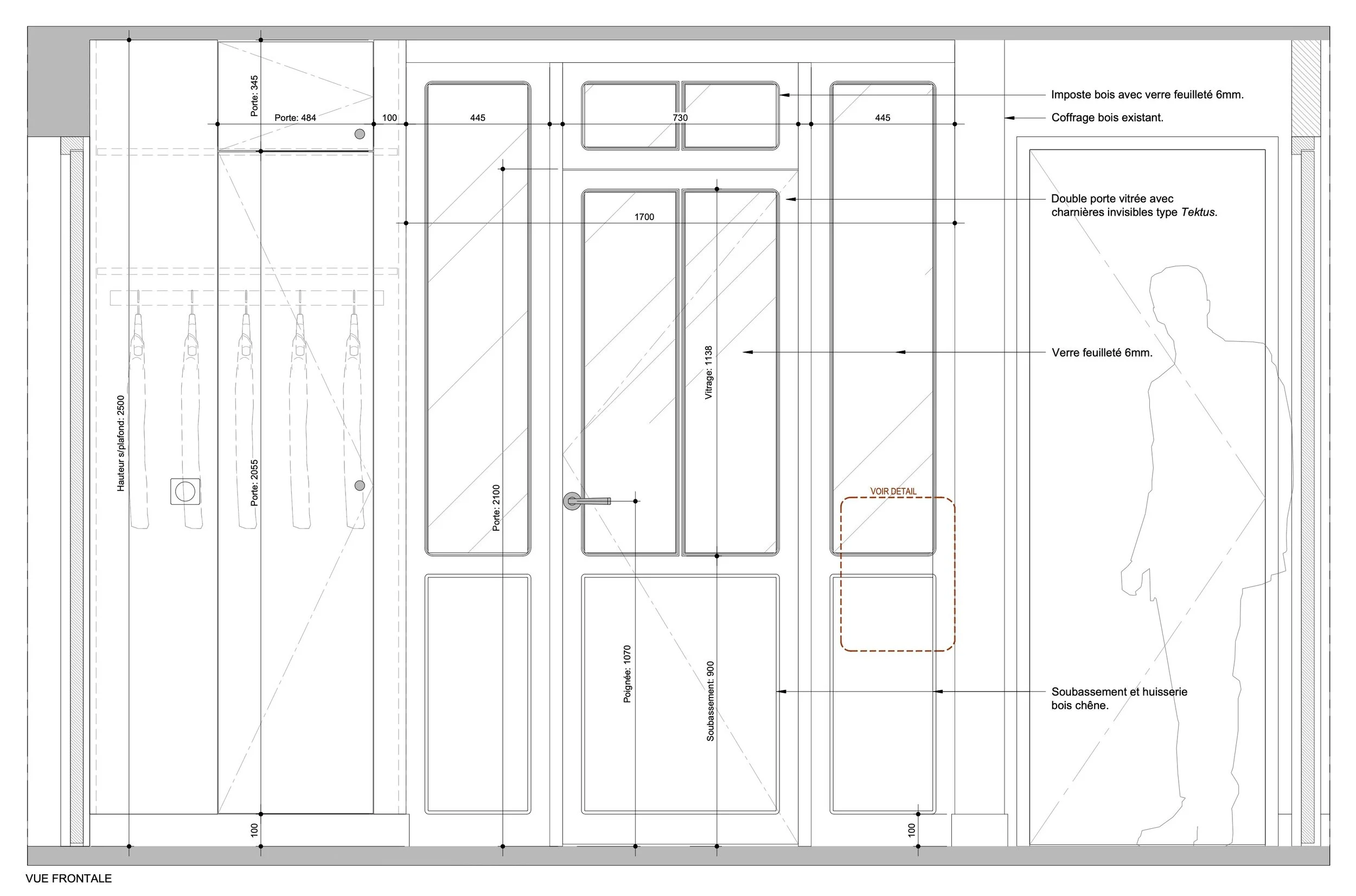
Le Dossier Technique : la garantie d'un prix juste.

Une fois le design validé, nous passons à la phase de préparation opérationnelle. Je rédige un dossier technique complet (CCTP) qui définit précisément chaque intervention (maçonnerie, menuiserie, électricité, normes ERP pour les pros). Ce document est essentiel pour obtenir des devis fermes et définitifs.

  • Consultation des entreprises : J'interroge mon réseau d'artisans locaux partenaires reconnus pour leur savoir-faire à Montreuil, Vincennes et ses environs.

  • Optimisation budgétaire : J'analyse et négocie les devis pour vous garantir le meilleur rapport qualité/prix.

  • Sérénité : Vous savez exactement ce que vous payez, sans mauvaises surprises en cours de route.

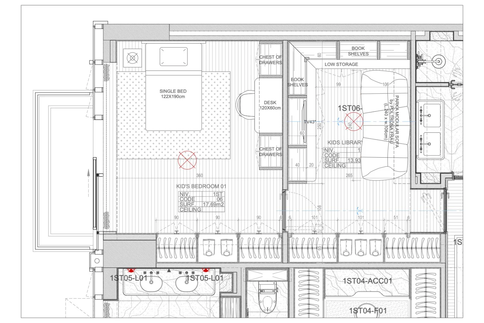
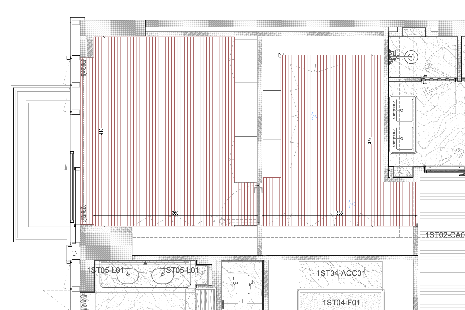
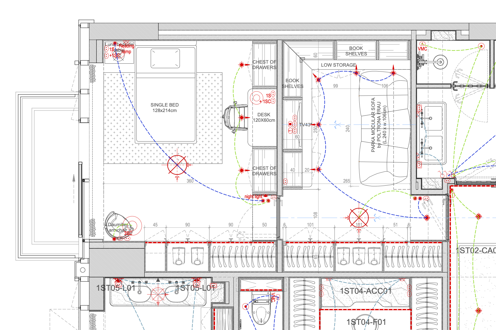
Plan d'un appartement avec plusieurs chambres, une cuisine, un salon, une terrasse et des salles de bain, destiné à une rénovation à Paris.

Pourquoi faire appel à mes services pour votre projet de rénovation?

Je sais que les démarches administratives et les normes techniques peuvent freiner vos projets. C’est pourquoi j’apporte une attention particulière à la conformité de vos établissements : accessibilité PMR, sécurité incendie et réglementation des ERP (Établissements Recevant du Public).

En confiant votre projet à un expert, vous évitez les mauvaises surprises réglementaires. Je gère la complexité technique pour que vous puissiez vous concentrer sur l'essentiel : votre installation ou le lancement de votre activité.

Autres questions fréquentes:

  • Avec un architecte d’intérieur :

    • Vous limitez les erreurs.

    • Vous optimisez les coûts dès la conception.

    • Vous sécurisez juridiquement votre rénovation.

    • Vous gagnez donc un temps précieux.

  • Le métier d'architecte d'intérieur nécessite d'intervenir sur la conception d'espaces intérieurs et de la maîtrise d'œuvre. Considéré comme un professionnel de la construction, il est donc soumis à l'obligation de l'assurance décennale.

    Etant couvert pour l'ensemble de mes missions de conception et de suivi, vous avez l’assurance que votre projet de rénovation soit géré dans les règles de l’art.

  • Les établissements recevant du public (ERP) sont des bâtiments dans lesquels des personnes extérieures sont admises. Peu importe que l’accès de votre établissement soit payant ou gratuit, libre ou restreint. Les ERP sont classés en catégories qui définissent ainsi les exigences réglementaires applicables (type d’autorisation de travaux ou règles de sécurité par exemple) et qui sont déterminées en fonction de la capacité d’accueil de votre établissement.

    Anticiper les normes et obligations légales font parti de mon quotidien c’est pourquoi grâce à mon expertise, votre rénovation devient plus fluide, plus sécurisée et plus rentable.