Croquis à main levée d'un présentoir circulaire avec meubles bas de rangement et éclairage au plafond.

Croquis d’intention pour la création d’un meuble agencé sur-mesure dans une boutique parisienne de prêt-à-porter (2013).

Plan d'étage d'une villa avec deux suites, chacune comprenant une entrée, un salon, une chambre, une salle de bain et une terrasse extérieure. Les zones sont séparées par un espace central avec escaliers.

Mes services

Projet d’aménagement d’un ensemble de villas de luxe à Hangzhou (Chine) 2016.

J'offre une gamme complète de services, allant de la conception initiale à la réalisation finale.

Mon objectif est donc de vous accompagner avec rigueur, créativité et méthode. Chaque étape est pensée pour optimiser votre budget et garantir un résultat à la hauteur de vos attentes.

Voici donc ce que je prends en charge pour vous:

DOSSIER DE CONCEPTION

Il s’agit de la conception sur mesure de votre projet tels que l’aménagement des espaces, le souci du détail et de l’harmonie des rendus pour répondre au mieux à vos goûts et vos usages.

Cette prestation comprend :

- des croquis et des plans côtés incluant éventuellement plusieurs propositions d’aménagement intérieur.

- des visuels 3D pour vous aider à vous projeter dans les volumes.

Au cours de cette session personnalisée, nous évoquerons ensemble votre espace en termes de vision, de préférences et d’objectifs.

Mon rôle sera alors de vous offrir des conseils d’experts et des idées créatives. Ce sera l’occasion pour moi de répondre à toutes vos questions.

ME CONTACTER
Marbre Arabescato Orobico Rosso

Tête de lit en jonc de mer tressé, marbre arabescato rosso, texture de bois vernis: exemples de matériaux utilisés sur divers projets.

Texture de bois
Parquet géométrique bois
Dessin d'un loft meublé avec pièce mansardée.

Projet d’aménagement d’un studio parisien (2010).

Carreaux de céramique vert avec motifs circulaires en relief

Lames de parquet géométriques, carrelage mural vert émaillé fait main, stores de fenêtres en raphia: autres exemples de matériaux utilisés dans certains projets.

Rideau en tissu de lin beige, partiellement plié, devant une fenêtre avec vue sur des arbres.
Échantillons de tissus, palettes de couleurs et matières pour décoration intérieure.
Détail de tête de lit en jonc de mer tressé fait main.
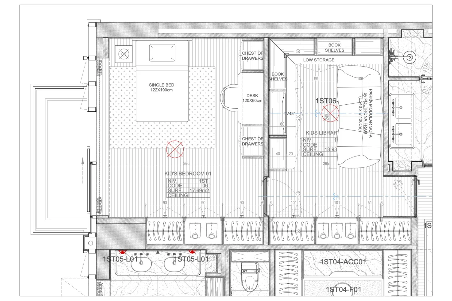
Plan d'aménagement intérieur montrant une verrière avec porte, un petit bureau et des étagères en chêne massif ainsi qu'un dressing sur-mesure.
Dessin technique d'une verrière avec porte et soubassement en bois massif.

Création sur-mesure d’un dressing et d’une verrière intérieure bois (projet en cours de réalisation).

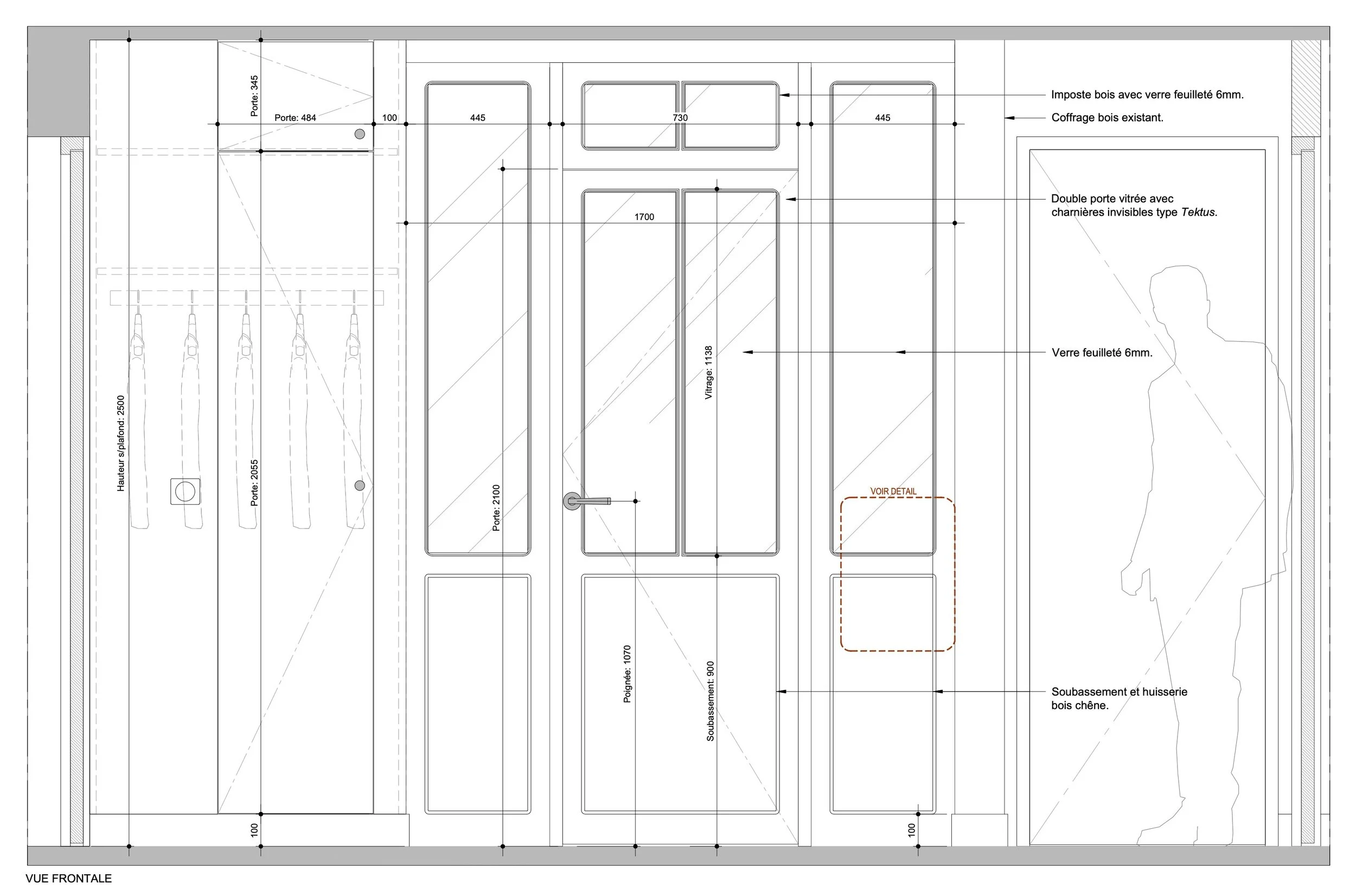
Détail technique d'une porte agencée en bois avec vitrage ainsi que le modèle existant d'après photo.

Détail d’assemblage bois.

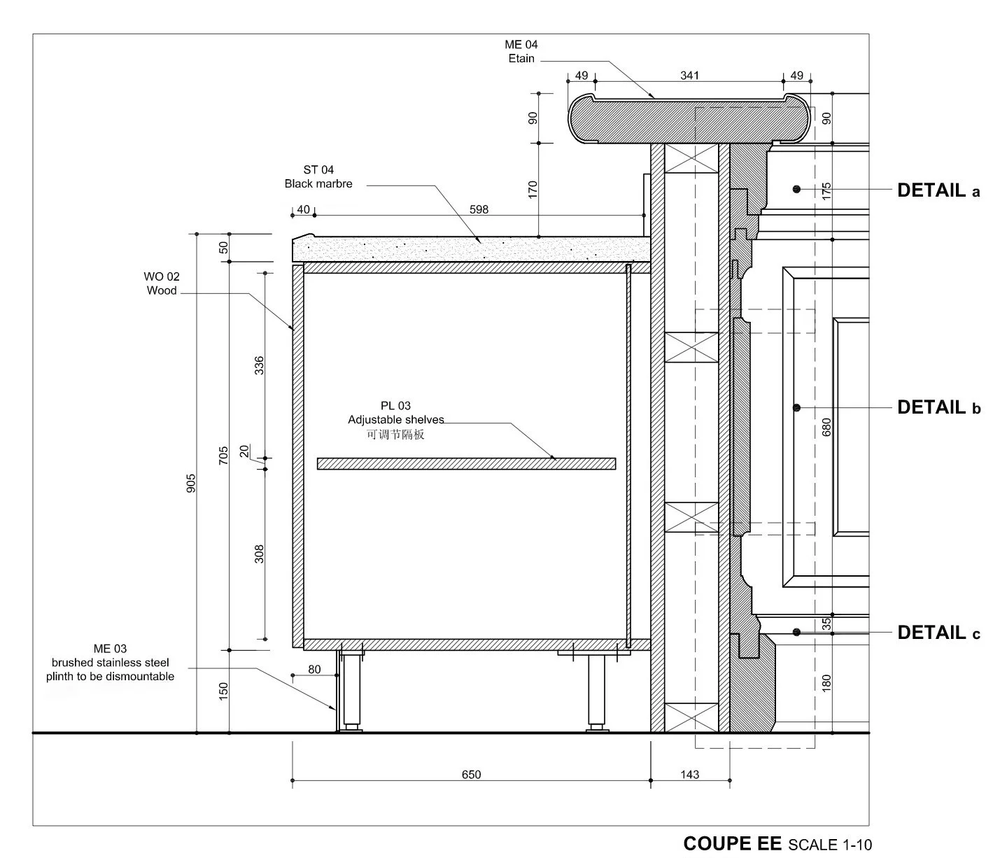
Coupe détaillée d'un comptoir bar

Coupe détaillée d’un comptoir de bar (2016).

LES DOSSIERS TECHNIQUES ET ADMINISTRATIFS

Ce dossier inclut toutes démarches administratives tels que la déclarations préalable et autres demandes d’autorisation afin d’assurer la conformité de votre projet.

Cette prestation comprend :

- L’étude précise des règles applicables à votre projet.

- La réalisation et le dépôt de tous documents nécessaires à l’élaboration de votre dossier.

DEMANDER UN DEVIS

LE CONTRÔLE BUDGÉTAIRE DE VOTRE PROJET

Cette phase consiste à faire l’évaluation budgétaire de votre projet tout en faisant le choix de collaborer avec des artisans d’exception qu’ils soient spécialistes du bois, de la pierre, du verre ou de tout autre matériaux.

Cette prestation comprend :

- La réalisation du dossier de consultation des entreprises.

- L’assistance au Marché des travaux.

Me contacter
Plan d'aménagement en couleur d'une suite d'hôtel avec terrasse, salon, chambre, salle-de-bain, douche hammam, dressing, entrée et sanitaires.

Aménagement d’une Suite sur deux niveaux pour un projet hôtelier à Megève (France). 2014.

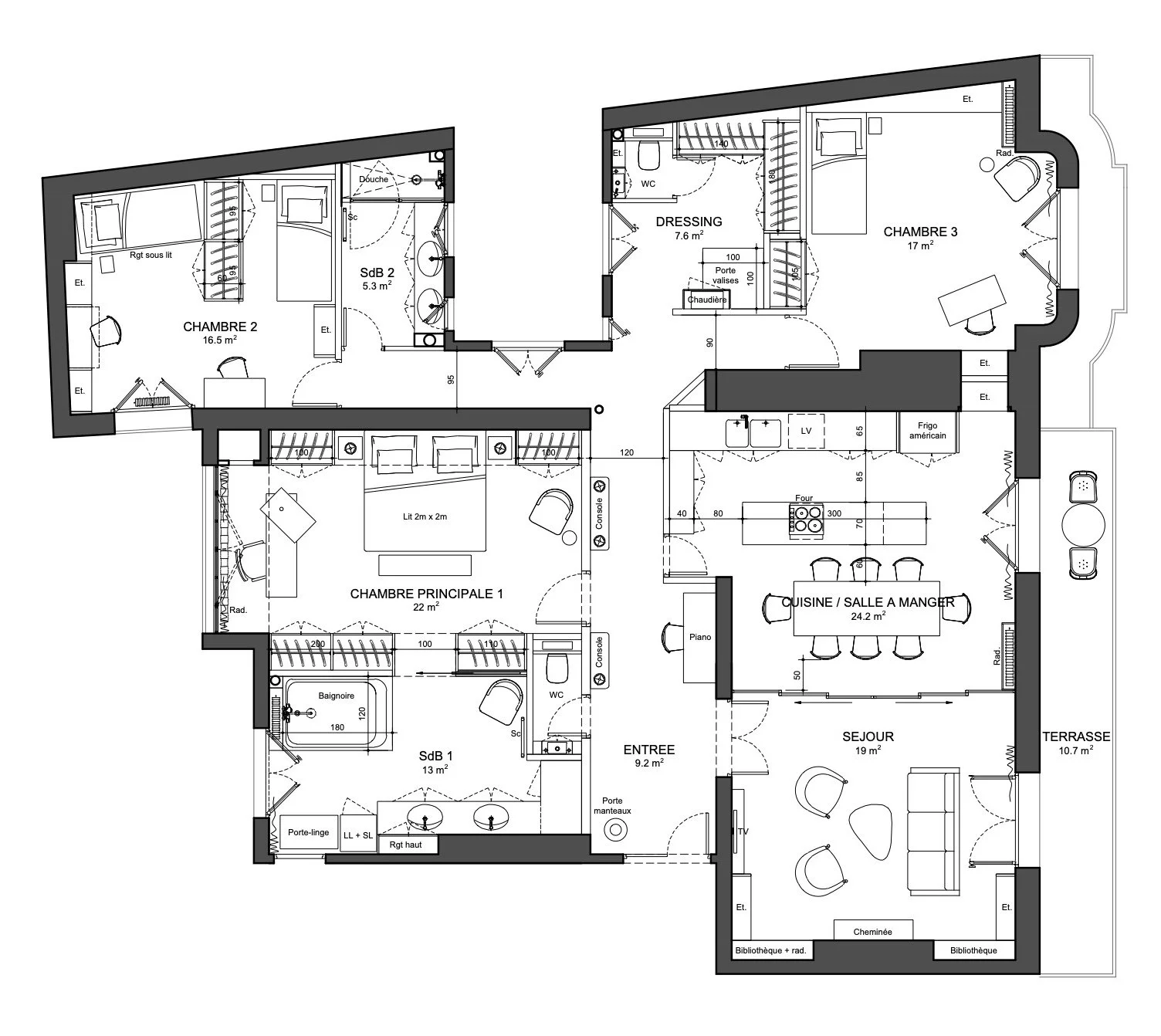
Plan d'aménagement d'un appartement incluant chambre principale, chambres secondaires, salles de bains, cuisine, salle à manger, salon et terrasse.

Projet d’aménagement d’un appartement parisien (2021).

LA RÉALISATION DES TRAVAUX

Il s’agit de la direction et le suivi des travaux avec pour principale mission d’assurer le bon déroulement et la qualité du projet jusqu’à sa réalisation.

Cette prestation comprend :

- La direction du chantier.

- L’assistance jusqu’à la réception des travaux.

DEMANDER UN DEVIS
Surface en béton gris avec des marques et des textures variées.
Détail de mur avec miroirs piqués et rosace décorative au centre.
Tissu en rotin ou en osier tissé.
Surface en terrazzo avec des morceaux de pierre de différentes tailles et couleurs
Pièce à vivre en cours de rénovation avec mur blanc et fenêtre et trois échantillons de papier peint sur le mur.
Femme souriante dans un appartement en rénovation et en cours de travaux.
Détail fauteuil avec structure en bronze

Envie de lancer un projet ?

Contactez-moi pour en savoir plus.