A la recherche d’une nouvelle identité :

Transformer un espace de vente vieillissant en lieu attractif, alliant fonctionnalité opérationnelle et identité de marque puissante : tel était le défi relevé pour la conception de cette boutique de lingerie exclusive située dans l’Est Parisien.

Un espace de vente efficace et convivial au service de ses clients.

Ma mission pour ce projet s'est concentrée sur la phase cruciale de conception permettant ainsi au Maître d’Ouvrage de répondre précisément aux besoins de ses clients tout en proposant une vision créative et distincte de sa boutique.

Maximiser le Potentiel :

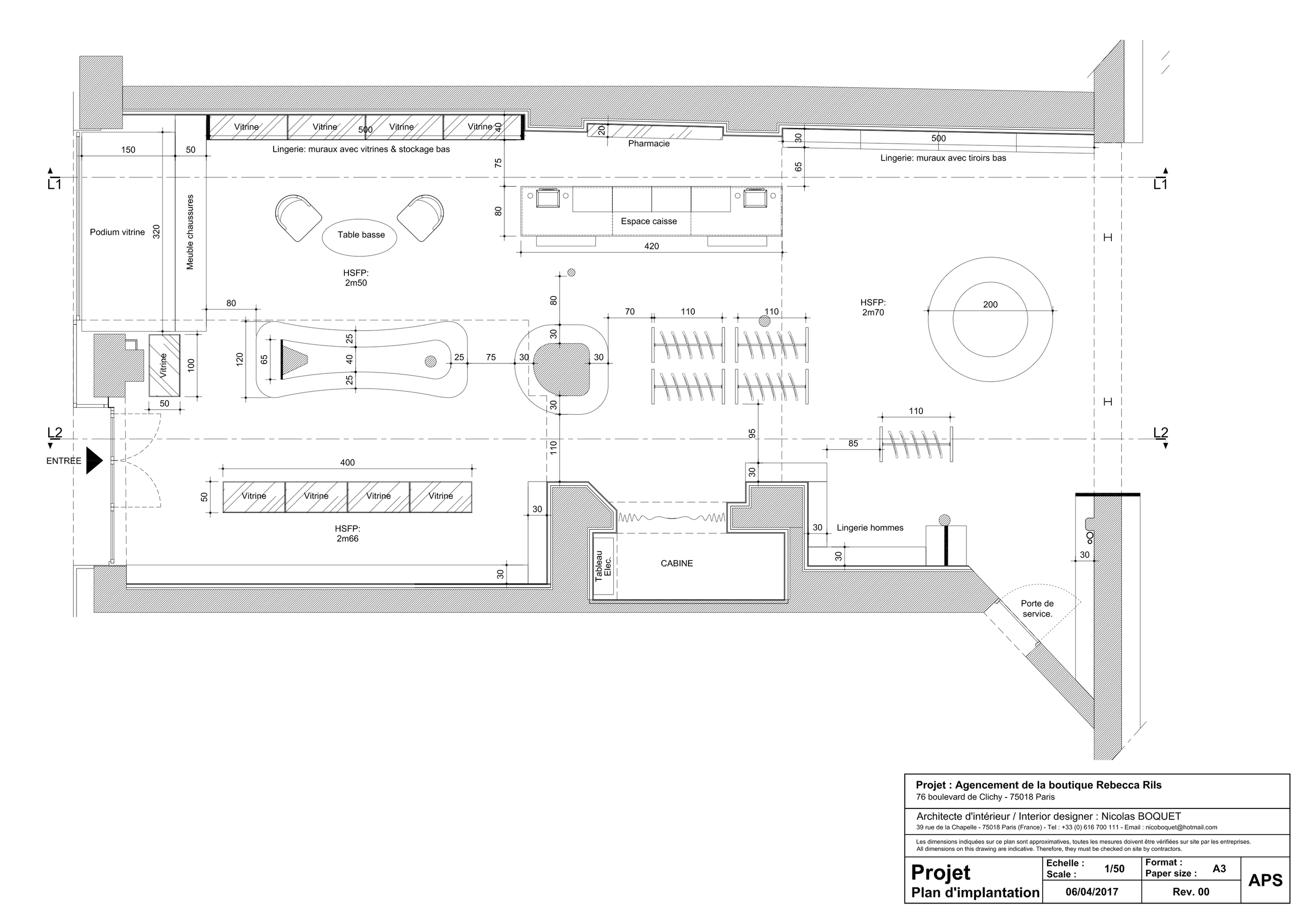
Ma première étape fut d’appréhender le volume existant : après un relevé méticuleux des lieux, j’ai proposé au client un plan d'implantation précis dont la fonction principale était d’optimiser l’espace de vente. Pour ce faire, il m’a fallu redéfinir les zones de circulation, l’emplacement stratégique des différents présentoirs et enfin l’identité globale de la boutique dans le but de garantir un parcours client intuitif et fluide.

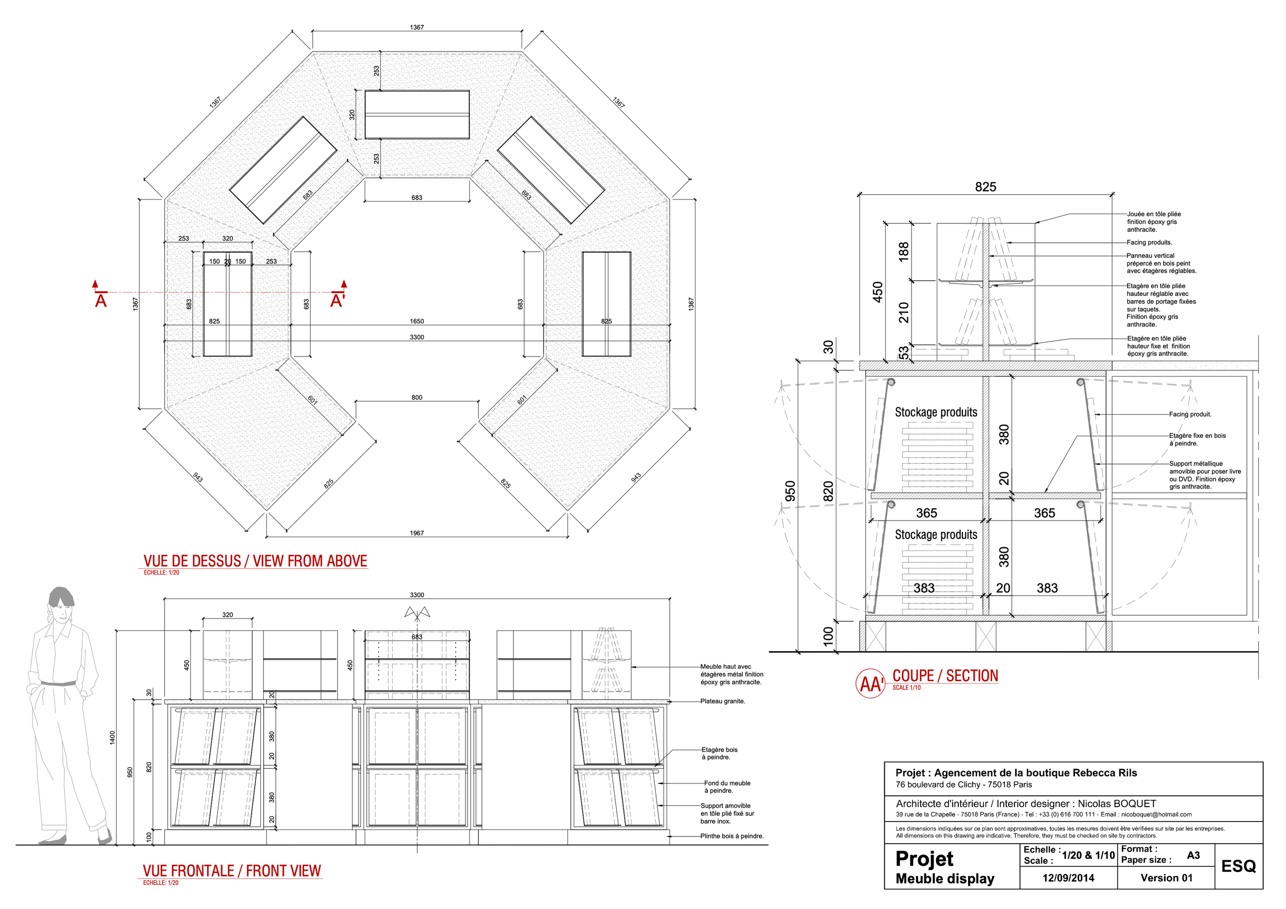
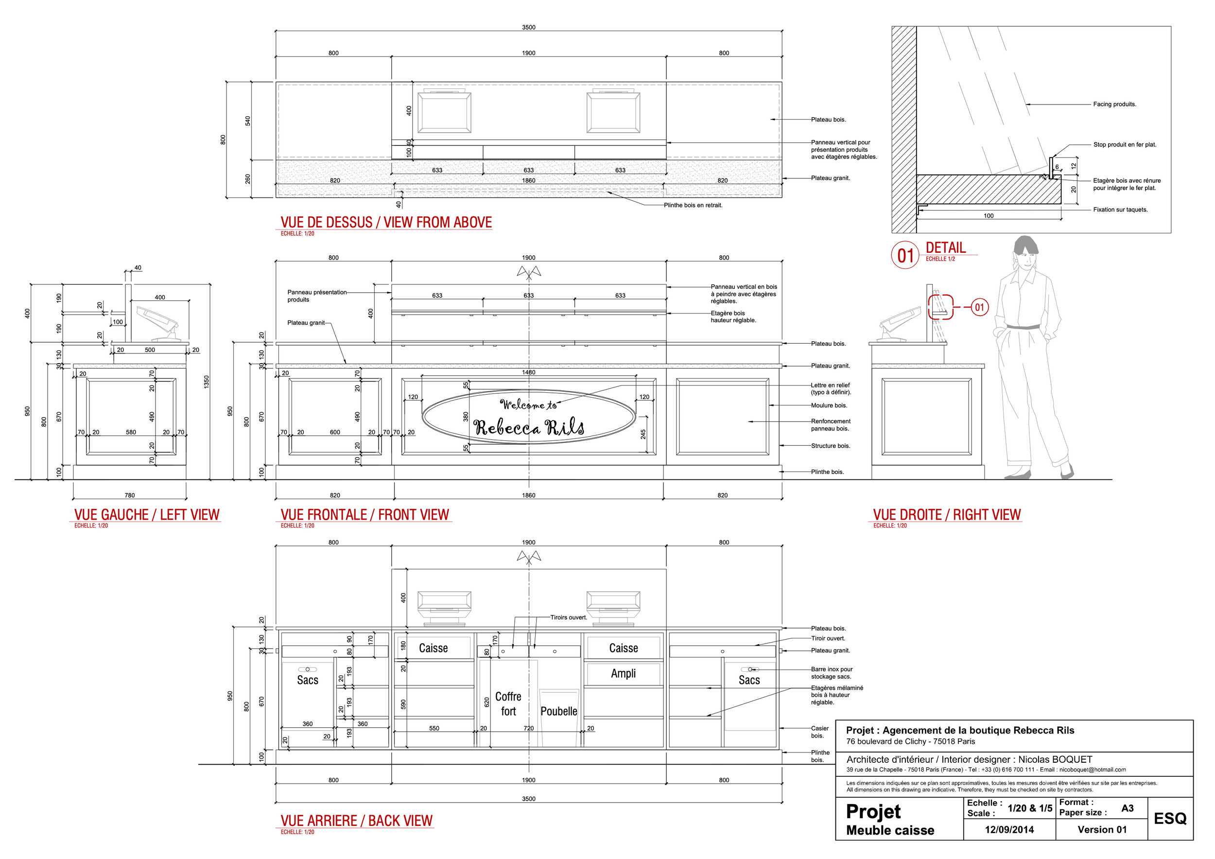
L'Identité par le détail : de la conception globale au mobilier sur-mesure :

C'est lors de la phase détaillée que l’approche créative a véritablement pris forme, visant à doter la boutique d'une identité forte et singulière. Au-delà du simple respect du programme, j’ai proposé des solutions qui fonctionnent grâce à la conception de mobiliers ergonomiques et sur-mesure. Le point fort étant d’offrir une flexibilité maximale afin de pouvoir exposer une gamme variée de produits.

Cette phase de conception a ainsi été accompagné d'un dossier complet comprenant des croquis d'intention, des vues 3D et des plans détaillés à l'échelle. Tout cela dans le but de garantir une parfaite compréhension des volumes et de permettre ensuite une exécution précise et rigoureuse des meubles par l’agenceur.

Vous avez un projet similaire mais vous ne savez pas bien quelle stratégie adopter pour rendre votre locale commercial plus fluide et plus attractif pour vos clients?

Comment réussir la rénovation d’un local commercial?

Réussir la rénovation d’un local commercial, c’est transformer un lieu en un levier de croissance. Mon rôle est donc de fusionner votre identité de marque avec les exigences du métier : respect des normes ERP, optimisation des flux et choix de matériaux durables.

En me confiant votre projet, vous sécurisez votre investissement : je gère la complexité technique et le suivi de chantier pour garantir une ouverture sereine, dans les délais, avec un design unique qui capte et fidélise votre clientèle.

Autres questions fréquentes:

  • En général, il varie entre 1 500 € et 3 000 € par m². Le coût dépend bien-sûr de divers facteurs tels que l'état du local, le type de commerce, les matériaux choisis et la complexité du projet. Il varie également selon les spécificités de chaque type de magasin, par exemple, un commerce alimentaire nécessitant des équipements particuliers.

  • Les établissements recevant du public doivent toujours recevoir une autorisation par l’autorité administrative, notamment en ce qui concerne la sécurité et l’accessibilité de vitre local.

    Anticiper les normes et obligations légales font parti de mon quotidien c’est pourquoi grâce à mon expertise, votre rénovation devient plus fluide, plus sécurisée et plus rentable.

  • Travailler avec un professionnel implanté localement offre une réactivité sans pareille. Ma connaissance fine des spécificités urbaines de Montreuil et de l'Est Parisien (PLU, copropriétés, spécificités du bâti ancien) est un gage de sécurité pour votre projet.

    Mon approche privilégie des solutions éco-responsables et des matériaux de qualité pour un intérieur pérenne. Je ne crée pas seulement des décors, je bâtis des lieux de vie qui racontent votre histoire.